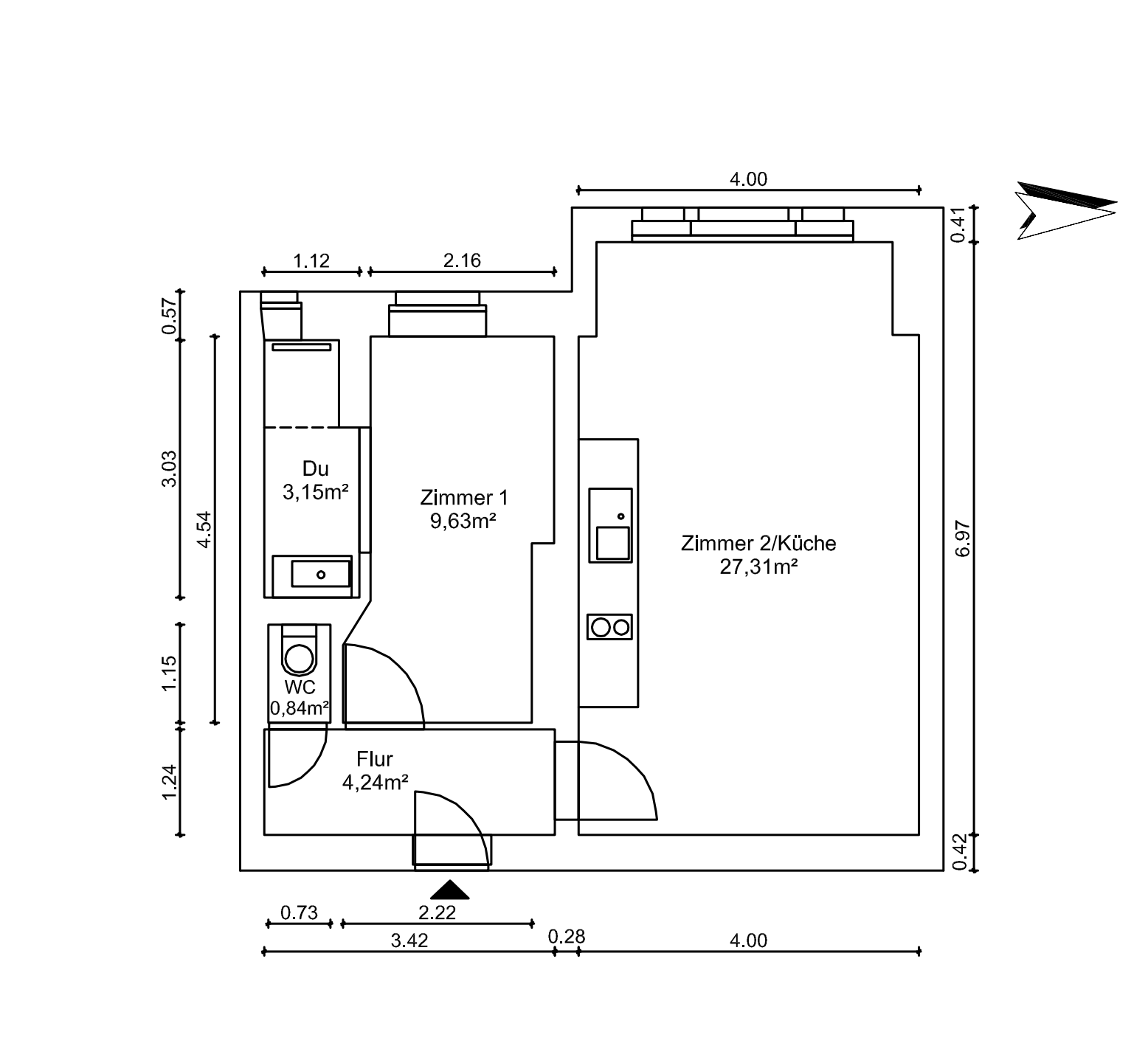
In der Gärtnerstraße erwartet Sie im 2. Obergeschoss des Vorderhauses eine ca. 46 m² große Wohnung mit klarer Raumstruktur und einem Wohnkonzept, das Urbanität und Komfort auf den Punkt bringt (siehe Grundriss). Beim Eintritt befindet sich links die separate Toilette – praktisch gelöst und angenehm abgetrennt vom Wohnbereich. Direkt anschließend liegt das Schlafzimmer mit einem offen gestalteten Bad en suite, ausgestattet mit ebenerdiger Dusche für zeitgemäße Funktionalität. Das Herzstück der Wohnung ist die großzügige Wohnküche: offen, kommunikativ und als zentraler Lebensraum konzipiert – ideal zum Kochen, Arbeiten und Ankommen. Dank der Westausrichtung präsentiert sich die Wohnung sehr hell und profitiert besonders von Nachmittagssonne, die dem Wohnbereich eine warme Atmosphäre verleiht. Die Lage ist ein echtes Highlight: absolute Toplage in Friedrichshain, nur einen Katzensprung vom Boxhagener Platz (Boxi) entfernt – mit Cafés, Restaurants, Wochenmarkt, ÖPNV und allem, was dieses Viertel so begehrt macht, direkt vor der Tür. Die Wohnung wird bezugsfrei verkauft. Besichtigungen sind nach Absprache ab sofort möglich.
Alle Fakten auf einen Blick:
Die Wohnung wird bezugsfrei verkauft
Einbauküche
Lagebeschreibung:
Boxi-Kiez, Friedrichshain. Wer hier wohnt, hat alles vor der Tür – und zwar wirklich. Samstag Wochenmarkt, Sonntag Flohmarkt: der Boxhagener Platz liefert jedes Wochenende Programm, ohne dass man planen muss. Dazwischen: Restaurants, Cafés, kleine Läden und richtig gute Bars – die Qual der Wahl ist hier kein Spruch, sondern Alltag. Die Gärtnerstraße selbst liegt angenehm im Kiez verankert: urban, lebendig, aber nicht aufdringlich. Kurze Wege für den täglichen Einkauf, spontane Drinks, Dinner mit Freunden oder einfach ein schneller Espresso – Friedrichshain funktioniert hier zu Fuß. Genau deshalb zählt die Adresse zu den Toplagen im Viertel.
Wir freuen uns auf Ihre Anfrage!
- Aktualisiert am:
- 31/03/2026
- 1 Schlafzimmer
- 1 Badezimmer
- 46.00 m2
- Baujahr:1905
















































